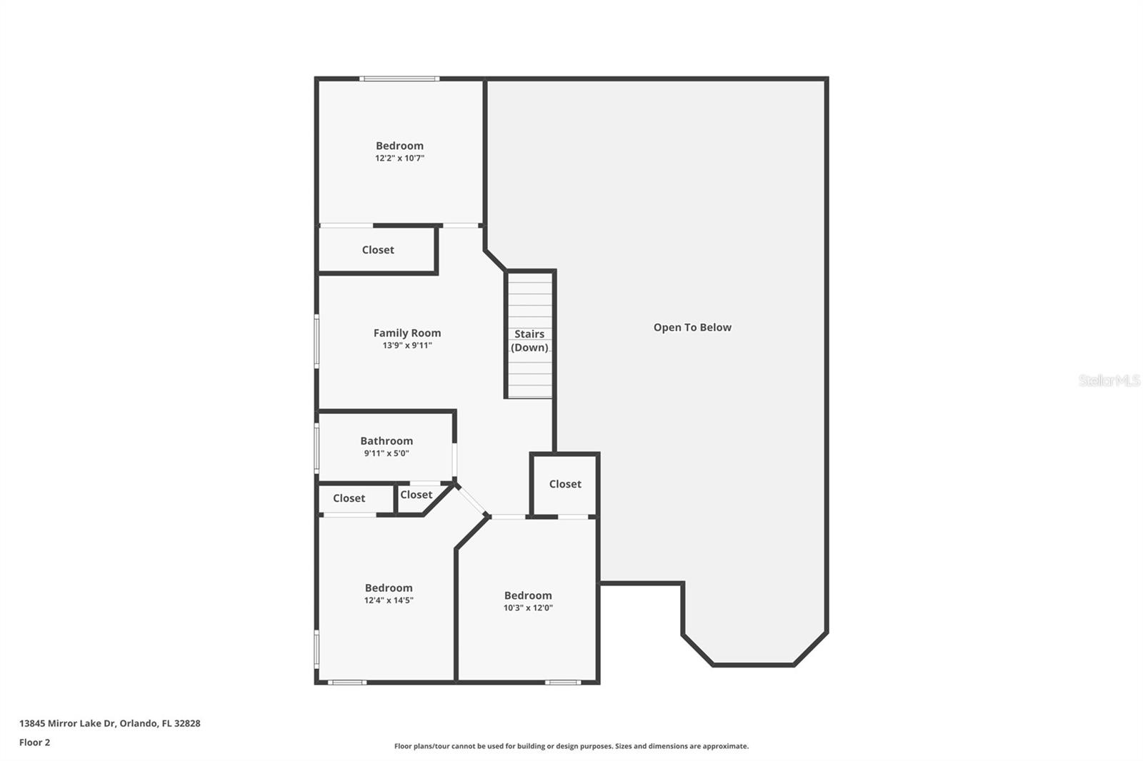
13845 Mirror Lake Drive, ORLANDO, FL 32828
Property Photos
Would you like to sell your home before you purchase this one?
Priced at Only: $525,000
For more Information Call:
Address: 13845 Mirror Lake Drive, ORLANDO, FL 32828
Property Location and Similar Properties
- MLS#: O6356296 ( Residential )
- Street Address: 13845 Mirror Lake Drive
- Viewed: 1
- Price: $525,000
- Price sqft: $188
- Waterfront: No
- Year Built: 2003
- Bldg sqft: 2799
- Bedrooms: 4
- Total Baths: 3
- Full Baths: 2
- 1/2 Baths: 1
- Garage / Parking Spaces: 2
- Additional Information
- Geolocation: 28.5257 / -81.1564
- County: ORANGE
- City: ORLANDO
- Zipcode: 32828
- Subdivision: Avalon Lakes Ph 01 Village I
- Elementary School: Timber Lakes Elementary
- Middle School: Timber Springs Middle
- High School: Timber Creek High
- Provided by: THE WILKINS WAY LLC
- Contact: William Wygle
- 407-874-0230

- DMCA Notice
-
DescriptionWATERFRONT Updated 4 Bedroom 2.5 Bathroom with 2,200+ square feet of living space in the GATED COMMUNITY of Avalon Lakes. Upon entry you are met with soaring high vaulted ceilings allowing for maximum natural light into the entire home. There is a large formal living and dining area at the front of the home. Walking into the great room and into the kitchen you are met with long water views across the pond! The updated kitchen is complete with granite countertops and backsplash, stainless steel appliances, staggered custom cabinets topped with crown molding, along with bar top seating that opens to the great room. The DOWNSTAIRS PRIMARY Bedroom has a tray ceiling and beautiful water views with glass slider access to the covered and screened in patio. Walking past the His & Hers Closets you are met with a complete primary bathroom including dual vanity, glass enclosed shower and a garden tub. Up the switchback staircase with wooden spindles you are led to an open loft area. In the rear of the home is a bedroom with water views. On the other side of the loft are two full bedrooms and a full bathroom. ROOF 2017. AC 2021. Other upgrades include: lighting fixtures throughout, freshly painted primary bedroom and bathroom, and new garage door opener. Avalon Lakes gated community amenities include an on site management office, clubhouse with a gym, swimming, pool, volleyball court, tennis court, basketball court, soccer field, and a sail shade covered playground. Ask your agent for the upgrade sheet and make an appointment to see this home today!
Payment Calculator
- Principal & Interest -
- Property Tax $
- Home Insurance $
- HOA Fees $
- Monthly -
For a Fast & FREE Mortgage Pre-Approval
Apply Now
Apply NowFeatures
Building and Construction
- Covered Spaces: 0.00
- Exterior Features: Rain Gutters, Sidewalk, Sliding Doors
- Flooring: Laminate, Tile
- Living Area: 2238.00
- Roof: Shingle
School Information
- High School: Timber Creek High
- Middle School: Timber Springs Middle
- School Elementary: Timber Lakes Elementary
Garage and Parking
- Garage Spaces: 2.00
- Open Parking Spaces: 0.00
- Parking Features: Curb Parking, Driveway
Eco-Communities
- Water Source: Public
Utilities
- Carport Spaces: 0.00
- Cooling: Central Air
- Heating: Central, Electric
- Pets Allowed: Yes
- Sewer: Public Sewer
- Utilities: BB/HS Internet Available, Cable Available, Electricity Connected, Public, Sewer Connected, Underground Utilities, Water Connected
Amenities
- Association Amenities: Basketball Court, Clubhouse, Fitness Center, Gated, Park, Playground, Pool, Recreation Facilities, Tennis Court(s)
Finance and Tax Information
- Home Owners Association Fee Includes: Pool, Management, Recreational Facilities
- Home Owners Association Fee: 109.00
- Insurance Expense: 0.00
- Net Operating Income: 0.00
- Other Expense: 0.00
- Tax Year: 2024
Other Features
- Appliances: Convection Oven, Dishwasher, Dryer, Microwave, Refrigerator, Washer
- Association Name: Sylvia Lugo
- Association Phone: 407-459-8171
- Country: US
- Interior Features: Ceiling Fans(s), Tray Ceiling(s), Vaulted Ceiling(s), Walk-In Closet(s)
- Legal Description: AVALON LAKES PH 1 VLG(S)I & J 51/128 LOT72 VILLAGE J
- Levels: Two
- Area Major: 32828 - Orlando/Alafaya/Waterford Lakes
- Occupant Type: Vacant
- Parcel Number: 31-22-32-0527-10-072
- Possession: Close Of Escrow
- Style: Traditional
- View: Water
- Zoning Code: P-D
Similar Properties
Nearby Subdivisions
Augusta
Avalon
Avalon Lakes
Avalon Lakes Ph 01 Village I
Avalon Lakes Ph 02 Village F
Avalon Lakes Ph 02 Village G
Avalon Lakes Ph 03 Village C
Avalon Park Northwest Village
Avalon Park South Ph 01
Avalon Park South Ph 2
Avalon Park South Phase 2 5478
Avalon Park Village 04 Bk
Avalon Park Village 05 51 58
Bella Vida
Bridge Water
Bridge Water Ph 04
Bristol Estates
Deer Run South Pud Ph 01 Prcl
East 5
Heather Glen
Huckleberry Fields Tr N1a
Huckleberry Fields Tr N2b
Huckleberry Fields Tracts N9
Kings Pointe
Muirfield Pointe
Reservegolden Isle
River Oakstimber Spgs A C D
Seaward Plantation Estates
Seaward Plantation Estates Thi
Spring Isle
Stoneybrook
Stoneybrook 44122
Stoneybrook Un X1
Stoneybrook Un Xi
Stoneybrook Ut 09 49 75
Sydney Cove At Eastwood Prcl 0
The Preserve At Eastwood Nort
Timber Isle
Timber Isle Ph 02
Tudor Grvtimber Spgs Ak
Villages 02 At Eastwood Ph 03
Villages At Eastwood
Villiages At Eastwood
Waterford Chase East
Waterford Chase East Ph 01a Vi
Waterford Chase East Ph 02 Vil
Waterford Chase Ph 02 Village
Waterford Chase Village Tr A
Waterford Chase Village Tr B
Waterford Chase Village Tr D
Waterford Chase Village Tr F
Waterford Crk
Waterford Lakes
Waterford Lakes Tr N07 Ph 01
Waterford Lakes Tr N19 Ph 01
Waterford Lakes Tr N22 Ph 02
Waterford Lakes Tr N25a Ph 01
Waterford Lakes Tr N25a Ph 02
Waterford Lakes Tr N30
Waterford Lakes Tr N31a
Waterford Trls Ph 02
Waterford Trls Ph 3
Waterford Trls Ph I
Woodbury Pines
- Broker IDX Sites Inc.
- 750.420.3943
- Toll Free: 005578193
- support@brokeridxsites.com











































