12234 Cider Mill Lane, HUDSON, FL 34667
Active
Property Photos
Would you like to sell your home before you purchase this one?
Priced at Only: $260,000
For more Information Call:
Address: 12234 Cider Mill Lane, HUDSON, FL 34667
Property Location and Similar Properties
- MLS#: TB8444696 ( Residential )
- Street Address: 12234 Cider Mill Lane
- Viewed: 76
- Price: $260,000
- Price sqft: $118
- Waterfront: No
- Year Built: 1979
- Bldg sqft: 2202
- Bedrooms: 2
- Total Baths: 2
- Full Baths: 2
- Garage / Parking Spaces: 2
- Days On Market: 143
- Additional Information
- Geolocation: 28.3363 / -82.6831
- County: PASCO
- City: HUDSON
- Zipcode: 34667
- Subdivision: Beacon Woods Cider Mill
- Provided by: KELLER WILLIAMS REALTY- PALM H
- Contact: Kyle Iezzi
- 727-772-0772

- DMCA Notice
-
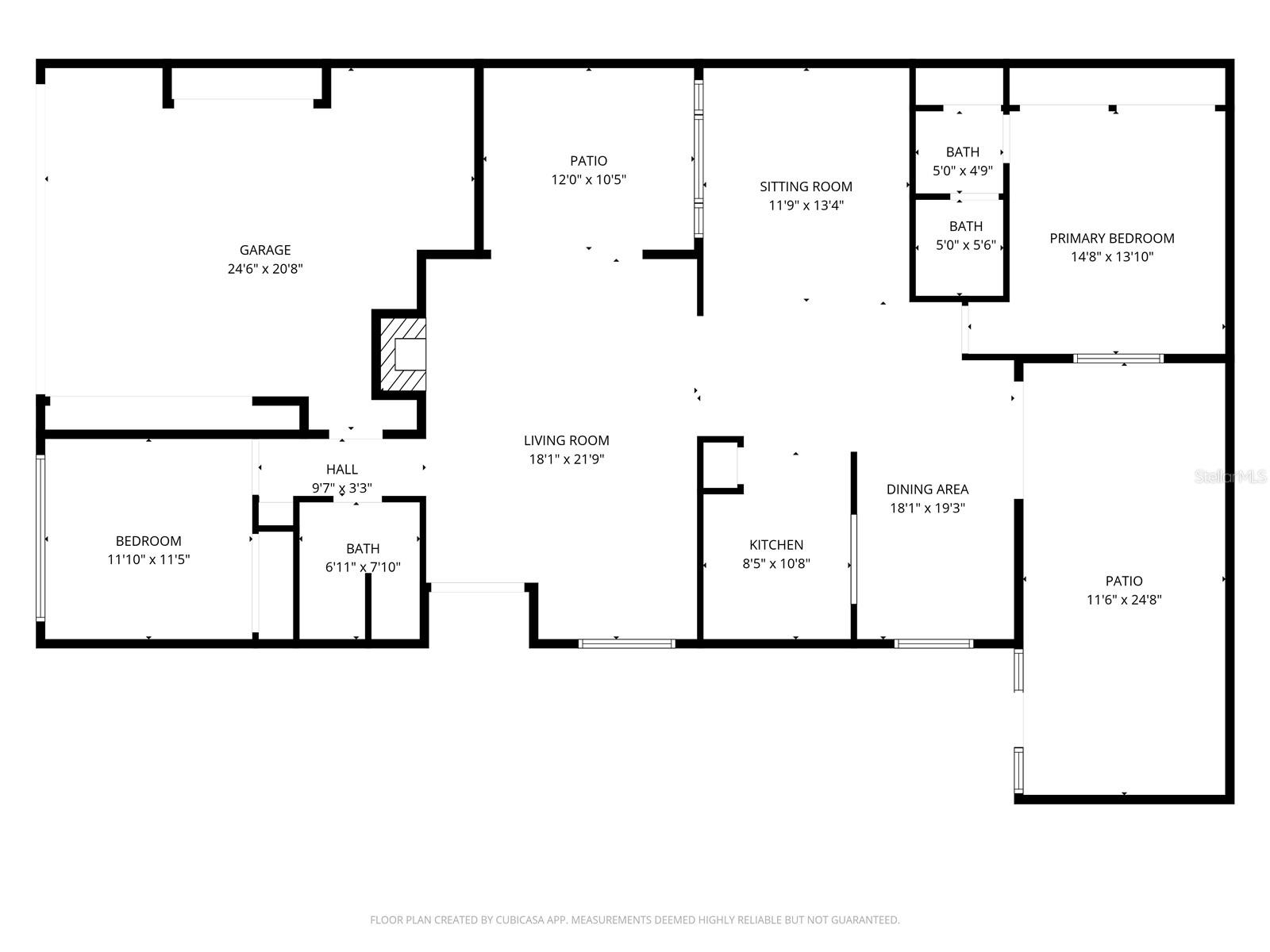
DescriptionWelcome to this charming home tucked away on a cul de sac in the desirable Beacon Woods Village community of Hudson, where sidewalks and nearby green spaces offer convenient options for outdoor enjoyment. This 2 bedroom, 2 bathroom residence offers a comfortable layout and a peaceful setting with thoughtful updates throughout. Inside, youll find a bright living and dining area that opens to a functional kitchen with stainless steel appliances, a reverse osmosis drinking water system and a serve over window into the dining room. The home has been well maintained with a new roof in 2022, a new AC system in 2021, and a whole home water softener system. The primary suite features its own private bath, while the second bedroom provides flexibility for guests, hobbies, or a home office. A fully enclosed patio at the back of the home provides a great space to relax or entertain. Beacon Woods Village residents enjoy access to a community pool, clubhouse, tennis courts, and golf course. Located just minutes from Hudson Beach Park, Werner Boyce Salt Springs State Park, and SunWest Park, this home offers the best of coastal Florida living. Schedule your showing today and experience all that Beacon Woods Village has to offer.
Payment Calculator
- Principal & Interest -
- Property Tax $
- Home Insurance $
- HOA Fees $
- Monthly -
For a Fast & FREE Mortgage Pre-Approval
Apply Now
Apply NowFeatures
Building and Construction
- Covered Spaces: 0.00
- Exterior Features: French Doors, Lighting
- Flooring: Tile, Wood
- Living Area: 1452.00
- Roof: Shingle
Land Information
- Lot Features: Cul-De-Sac, Landscaped, Paved
Garage and Parking
- Garage Spaces: 2.00
- Open Parking Spaces: 0.00
Eco-Communities
- Water Source: Public
Utilities
- Carport Spaces: 0.00
- Cooling: Central Air
- Heating: Central
- Pets Allowed: Yes
- Sewer: Public Sewer
- Utilities: Cable Available, Electricity Connected, Phone Available, Public, Sewer Connected, Water Connected
Amenities
- Association Amenities: Clubhouse, Fitness Center, Pool, Recreation Facilities, Tennis Court(s)
Finance and Tax Information
- Home Owners Association Fee Includes: Recreational Facilities
- Home Owners Association Fee: 85.00
- Insurance Expense: 0.00
- Net Operating Income: 0.00
- Other Expense: 0.00
- Tax Year: 2025
Other Features
- Appliances: Dishwasher, Dryer, Kitchen Reverse Osmosis System, Microwave, Range, Refrigerator, Washer, Water Softener
- Association Name: Beacon Woods Civic Association
- Association Phone: 727-863-1267
- Country: US
- Interior Features: Ceiling Fans(s), Primary Bedroom Main Floor
- Legal Description: BEACON WOODS CIDER MILL VILLAGE PHASE 1 PB 16 PG 62-64 LOT 363
- Levels: One
- Area Major: 34667 - Hudson/Bayonet Point/Port Richey
- Occupant Type: Owner
- Parcel Number: 03-25-16-0910-00000-3630
- Views: 76
- Zoning Code: PUD
Similar Properties
Nearby Subdivisions
Aripeka
Arlington Woods Ph 01a
Arlington Woods Ph 01b
Autumn Oaks
Barrington Woods Ph 02
Barrington Woods Ph 03
Beacon Ridge Woodbine Village
Beacon Woods
Beacon Woods Cider Mill
Beacon Woods East
Beacon Woods East Sandpiper
Beacon Woods East Sandpiper Vl
Beacon Woods East Villages
Beacon Woods Fairway Village
Beacon Woods Pinewood Village
Beacon Woods Village
Beacon Woods Village 07
Bella Terra
Berkley Village
Berkley Woods
Bolton Heights West
Briar Oaks Village 01
Briar Oaks Village 2
Briarwoods
Briarwoods Phase 1
Cape Cay
Clayton Village Ph 01
Clayton Village Ph 02
Clayton Village Ph 2
Country Club Estates
Di Paola
Di Paola Sub
Driftwood Isles
Emerald Fields
Fairway Oaks
Golf Mediterranean Villas
Griffin Park
Gulf Coast Acres
Gulf Harbor
Gulf Shore Subdivision
Gulf Shores
Gulf Shores 1st Add
Gulf Shores First Add
Gulf Side Acres
Gulf Side Estates
Heritage Pines Village
Heritage Pines Village 02 Rep
Heritage Pines Village 06
Heritage Pines Village 12
Heritage Pines Village 14
Heritage Pines Village 15
Heritage Pines Village 16
Heritage Pines Village 17
Heritage Pines Village 19
Heritage Pines Village 21 25
Heritage Pines Village 22
Heritage Pines Village 23
Heritage Pines Village 24
Heritage Pines Village 28
Heritage Pines Village 29
Heritage Pines Village 30
Heritage Pines Village 31
Highland Hills
Highlands
Highlands Ph 01
Holiday Estates
Hudson
Hudson Beach Estates
Hudson Hills
Iuka
Killarney Shores Gulf
Lakeside Woodlands
Leisure Beach
Long Lake Estates
Millwood Village
None
Not Applicable
Not In Hernando
Not On List
Orange Hill Ests 1st Add
Pine Island Estates
Pleasure Isles
Pleasure Isles 1st Add
Pleasure Isles 2nd Add
Pleasure Isles 3rd Add
Ponderosa Park Unit 3
Preserve At Sea Pines
Rainbow Oaks
Ravenswood Village
Riviera Estates Rep
Rolling Oaks Estates
Sea Pines
Sea Pines Sub
Sea Ranch On Gulf
Sea Ranch On The Gulf
Sea Ranch On The Gulf 5th Addn
Sea Ranchgulf Add 6
Spring Hill
Sunset Estates
Sunset Island
The Estates
The Estates Of Beacon Woods
The Estates Of Beacon Woods Go
The Reserve
Treehaven Estates
Vista Del Mar
Viva Villas
Viva Villas 1st Add
Viva Villas 1st Add Phase 1pb
Windsor Mill
- Broker IDX Sites Inc.
- 750.420.3943
- Toll Free: 005578193
- support@brokeridxsites.com










































