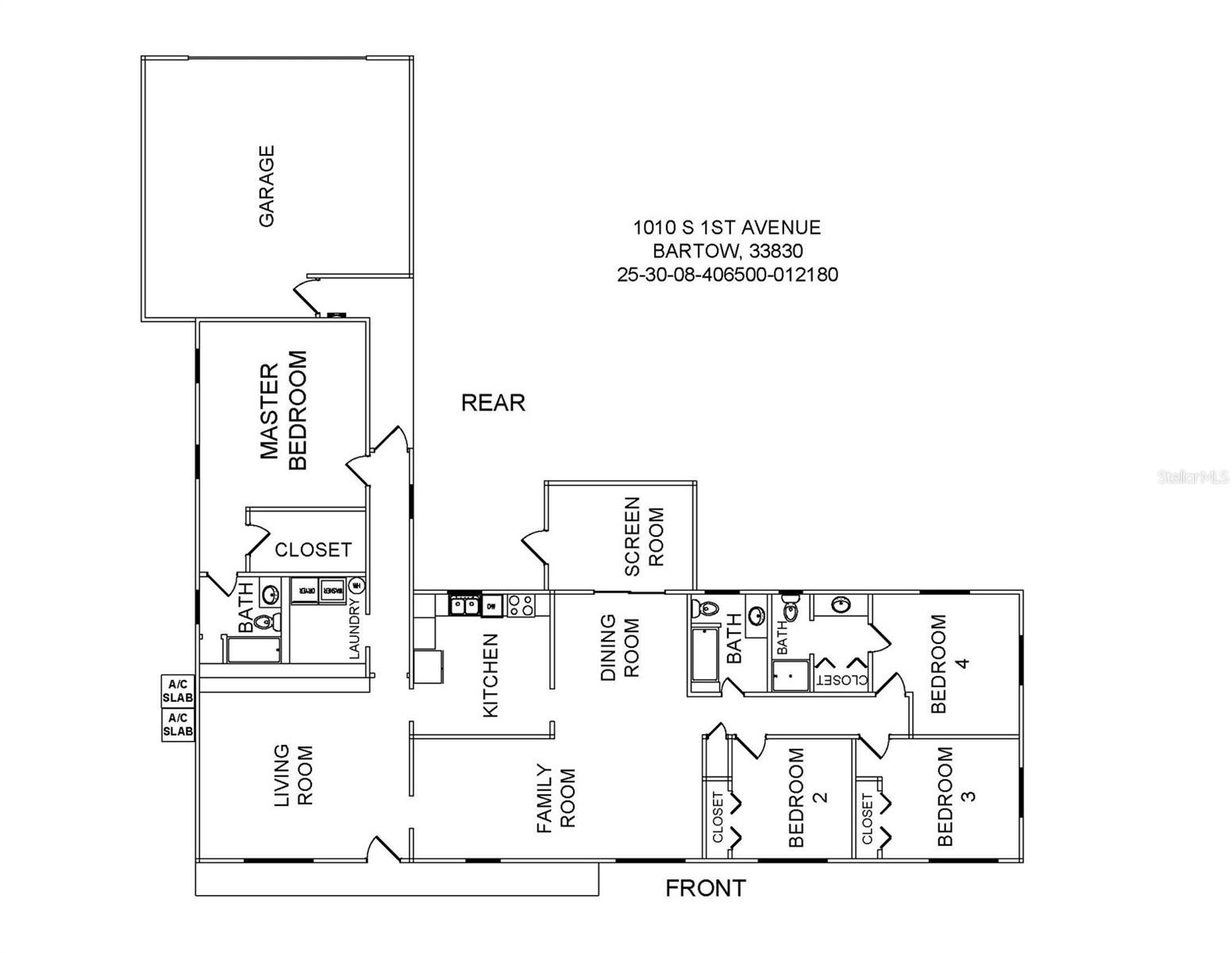
1010 1st Avenue, BARTOW, FL 33830
Active
Property Photos
Would you like to sell your home before you purchase this one?
Priced at Only: $394,950
For more Information Call:
Address: 1010 1st Avenue, BARTOW, FL 33830
Property Location and Similar Properties
- MLS#: L4956815 ( Residential )
- Street Address: 1010 1st Avenue
- Viewed: 89
- Price: $394,950
- Price sqft: $121
- Waterfront: No
- Year Built: 1965
- Bldg sqft: 3251
- Bedrooms: 4
- Total Baths: 3
- Full Baths: 3
- Garage / Parking Spaces: 2
- Days On Market: 156
- Additional Information
- Geolocation: 27.8869 / -81.8347
- County: POLK
- City: BARTOW
- Zipcode: 33830
- Subdivision: Hacklake
- Provided by: PORCHLIGHT HOMES LLC
- Contact: Angie Reynolds
- 863-529-3369

- DMCA Notice
-
DescriptionWelcome home to this beautifully renovated 4 bedroom, 3 bath residence located just minutes from Downtown Bartow, the Bartow Golf Course, Hack Lake, and Nye Jordan Park, which offers tennis, basketball, pickleball, and a playground! This home has been thoughtfully updated to provide a move in ready experience that provides peace of mind. Inside, youll find a bright and spacious floor plan featuring new luxury vinyl plank flooring, plush new carpet in the bedrooms, stylish new tile in each bathroom, and all new ceiling fans and light fixtures throughout. The brand new kitchen is perfect for everyday life and entertaining, boasting stainless steel appliances, quartz countertops, new cabinetry, and room to add an island for additional storage or seating. A designated laundry room off the kitchen provides added convenience. This home features two spacious master suites with beautifully renovated attached bathrooms, and one of the suites includes a large walk in closet. Major updates include new windows, a new roof, a new electric water heater, one brand new A/C system along with an existing system in great condition, and fresh landscaping around the property. Enjoy the outdoors with a fenced in backyard and a screened in porch, ideal for relaxing or hanging out with friends and family. The oversized two car garage and driveway offer additional storage space and ample parking for the property. With its multiple upgrades and unbeatable location near Bartows best recreation and amenities, this home wont last long!
Payment Calculator
- Principal & Interest -
- Property Tax $
- Home Insurance $
- HOA Fees $
- Monthly -
For a Fast & FREE Mortgage Pre-Approval
Apply Now
Apply NowFeatures
Building and Construction
- Covered Spaces: 0.00
- Exterior Features: Other
- Fencing: Wood
- Flooring: Carpet, Luxury Vinyl, Tile
- Living Area: 2352.00
- Roof: Shingle
Land Information
- Lot Features: Irregular Lot
Garage and Parking
- Garage Spaces: 2.00
- Open Parking Spaces: 0.00
Eco-Communities
- Water Source: Public
Utilities
- Carport Spaces: 0.00
- Cooling: Central Air
- Heating: Central
- Sewer: Public Sewer
- Utilities: Electricity Connected, Public, Sewer Connected, Water Connected
Finance and Tax Information
- Home Owners Association Fee: 0.00
- Insurance Expense: 0.00
- Net Operating Income: 0.00
- Other Expense: 0.00
- Tax Year: 2025
Other Features
- Appliances: Dishwasher, Electric Water Heater, Microwave, Range, Refrigerator
- Country: US
- Interior Features: Ceiling Fans(s), Walk-In Closet(s)
- Legal Description: HACKLAKE PB 11 PG 43 BLK 12 BEG NW COR OF LOT 18 S 100 FT E 140 FT N 11 FT NELY ALONG R/W TO NE COR OF LOT 18 W TO BEG
- Levels: One
- Area Major: 33830 - Bartow
- Occupant Type: Vacant
- Parcel Number: 25-30-08-406500-012180
- Possession: Close Of Escrow
- Views: 89
- Zoning Code: R-1A
Similar Properties
Nearby Subdivisions
Alturas
Alturas Dev Co Sub
Azalea Park Resub
Bartow City
Bellaire Heights
Bellaire Heights Add
Bellaire Park
Browns Add
Cecil Park Sub
Country Club Add
Dean Ranch
Dudleys 1st Add
Grovestuart Xing Ph 1
Hacklake
Harveys Land Imp
Highland Park Sub
Holland Park Place
J.h. Johnsons
James Farms
La Hacienda
Lake Garfield Estates
Lakes 01
Laurel Meadows
Laurel Meadows Ph 02
Lawndale
Lemoynes 1st Add
Liberty Rdg Ph 1
Liberty Rdg Ph 2
Liberty Ridge Phase Two Pb 176
Lytles 2nd Add
Lytles First Addition
Mann A T Add
Manns G W Sub
Millers Manor
None
Orangewood Court
Parkview Lake Estates
Peace River Heights Add 01
Pine Creek Estates
Richland Manor
Saddlewood
Sand Lake Groves
Sand Lk Grvs Ph Ii
South Florida Rr Add
Square Lake Ph 01
Stanley Tylers Sub
Summerlin School Lands
Sunset Heights
Taylor Brooke
Taylor Landing
The Grove At Stuart Crossing
The Oaks Add
Thompson Preserve
Thompson Preserve Phase 2
Walker Lake Estates
Waterwood
Waterwood Add
Waterwood Ii
Wellington View
Wheeler Heights
Wind Mdws
Wind Mdws South Ph 1
Wind Mdws South Ph 2a
Wind Meadows
Wind Meadows South
Wind Meadows South Ph One
Wind Meadows South Phase 2a
Wind Meadows South Phase 2c
- Broker IDX Sites Inc.
- 750.420.3943
- Toll Free: 005578193
- support@brokeridxsites.com








































