69 Spring Lake Drive, DEBARY, FL 32713
Active
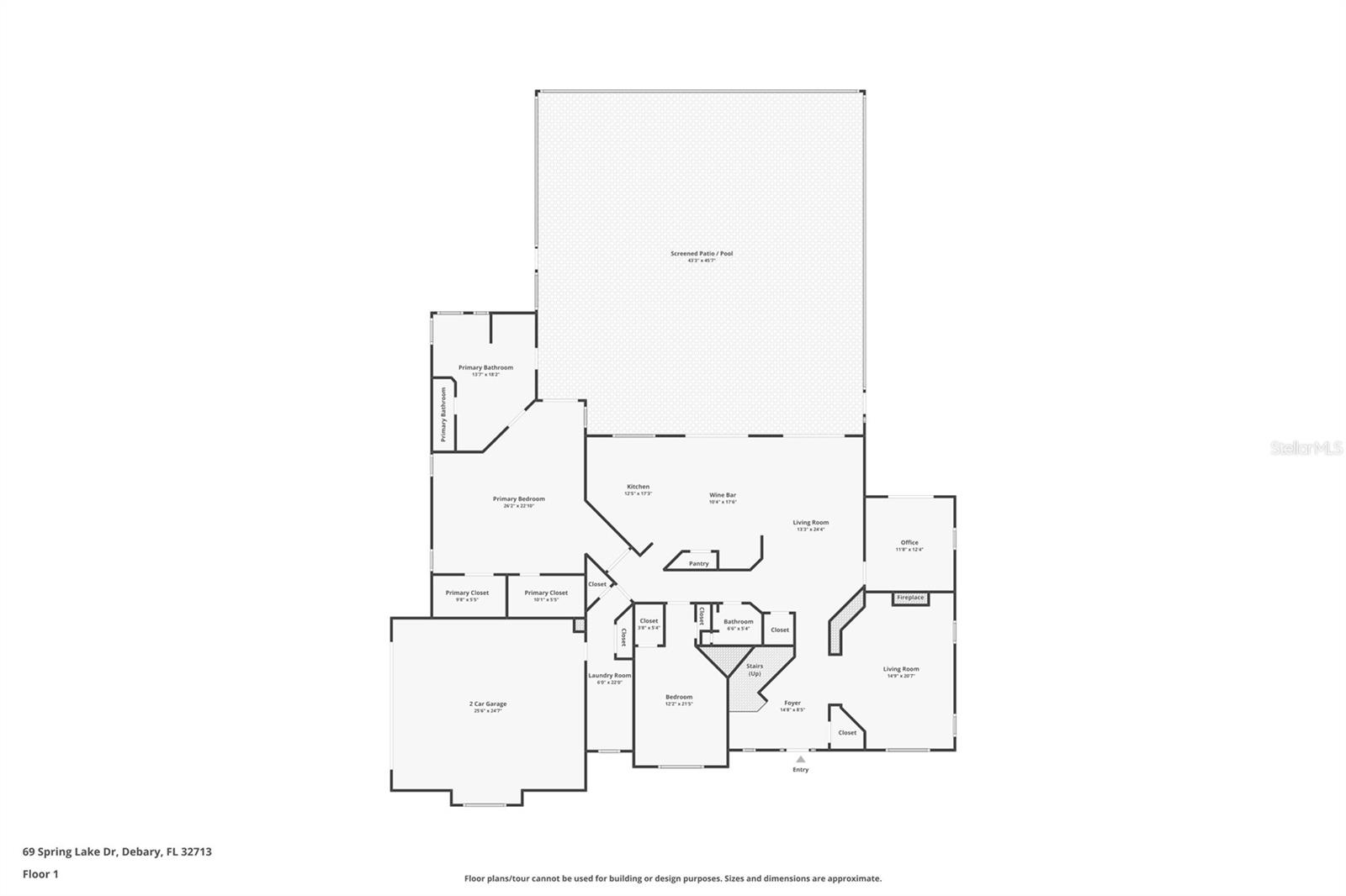
Property Photos
Would you like to sell your home before you purchase this one?
Priced at Only: $774,900
For more Information Call:
Address: 69 Spring Lake Drive, DEBARY, FL 32713
Property Location and Similar Properties
- MLS#: V4948100 ( Residential )
- Street Address: 69 Spring Lake Drive
- Viewed: 84
- Price: $774,900
- Price sqft: $142
- Waterfront: No
- Year Built: 1988
- Bldg sqft: 5446
- Bedrooms: 5
- Total Baths: 4
- Full Baths: 4
- Garage / Parking Spaces: 2
- Days On Market: 47
- Additional Information
- Geolocation: 28.8943 / -81.2811
- County: VOLUSIA
- City: DEBARY
- Zipcode: 32713
- Subdivision: Summerhaven Ph 04
- Provided by: GREENE REALTY OF FLORIDA LLC
- Contact: Terrie White
- 386-734-2200

- DMCA Notice
-
DescriptionOne or more photo(s) has been virtually staged. Welcome to your private lakefront magnificent retreat in the highly desirable and established Summerhaven community of DeBary with an optional HOA of $150 yr! This beautifully maintained 5 bedroom, 4 bath 3868 Sq Ft remodeled home features a **propane heated, in ground gunite pool** and is perfectly situated on an expansive .71 acre cul de sac lot with no rear neighbors, backing up to a serene lakeideal for peaceful views and fishing right from your backyard. From the moment you arrive, youll appreciate the inviting curb appeal, mature landscaping, and quiet setting. Step inside to soaring ceilings, abundant natural light, and a thoughtfully designed floor plan featuring laminate flooring and ceramic tile throughout. Architectural details such as plant shelves, chair railings, and open spaces add character and warmth to the home. All of the rooms are generously sized, providing comfort and flexibility for everyday living and entertaining. At the heart of the home is a gourmet chefs kitchen, complete with maple glazed cabinetry, granite counters, double ovens, a wine fridge, closet pantry, recessed lighting, and ample counter spaceperfect for both everyday living and hosting guests. The kitchen flows seamlessly into multiple living areas, including a spacious family room with a decorative fireplace, dining room, living room and additional flex space ideal for a home office or bonus room. The primary suite is conveniently located on the first floor and offers a spacious retreat with quartz countertops in the primary bath, dual vanities, a soaking jetted tub, and a separate shower. The suite also features direct access to the pool area, creating a true indoor outdoor living experience. Also located downstairs is an additional bedroom and full bathroomperfect for guests, in laws, or a private home office setup. Upstairs, youll find three spacious 3 bedrooms, 2 full bathrooms, jack and jill bath to connect 2 bedrooms, and a versatile loft areaperfect for a media room, playroom, or additional living space. The home also offers abundant storage throughout. Step outside to your own private outdoor oasis featuring the propane heated, in ground gunite pebble tech pool with a large screened enclosure and covered pavered lanaiperfect for year round enjoyment. The backyard backs to conservation and a peaceful lake, offering both privacy and a beautiful natural backdrop. Additional features include an inside laundry room with folding table and cabinets, a side entry two car garage, water softener system, internal vacuum, generator hookup, and sprinkler system on a well. Major updates provide peace of mind, including a brand new roof in 2026, HVAC systems replaced in 2016, new windows and sliding glass doors in 2024 and a new drain field installed just two years ago. Ideally located just minutes to medical facilities, shopping, dining, and I 4, with easy access to SunRail, youre only 30 minutes to Orlando and approximately 25 minutes to Daytona Beachmaking this location as convenient as it is peaceful. Take advantage of a rare opportunity to secure a significantly lower monthly payment! The seller is contributing approximately $14,500 toward an interest rate buy down, allowing qualified buyers to achieve an estimated 5.75 interest rate (with 20 down)a major savings in todays market. This incentive is available with a full price contract, making this home not only beautiful, but an incredible value.
Payment Calculator
- Principal & Interest -
- Property Tax $
- Home Insurance $
- HOA Fees $
- Monthly -
For a Fast & FREE Mortgage Pre-Approval
Apply Now
Apply NowFeatures
Building and Construction
- Covered Spaces: 0.00
- Exterior Features: Sliding Doors
- Fencing: Chain Link
- Flooring: Carpet, Ceramic Tile, Luxury Vinyl
- Living Area: 3868.00
- Other Structures: Shed(s)
- Roof: Shingle
Land Information
- Lot Features: Conservation Area, Cul-De-Sac, Greenbelt, City Limits, Level, Oversized Lot, Sidewalk
Garage and Parking
- Garage Spaces: 2.00
- Open Parking Spaces: 0.00
- Parking Features: Driveway, Garage Door Opener, Garage Faces Side, Oversized
Eco-Communities
- Pool Features: Gunite, Heated, In Ground, Salt Water, Screen Enclosure
- Water Source: Public
Utilities
- Carport Spaces: 0.00
- Cooling: Central Air
- Heating: Central, Heat Pump
- Pets Allowed: Cats OK, Dogs OK
- Sewer: Septic Tank
- Utilities: Cable Connected, Propane, Sprinkler Well
Finance and Tax Information
- Home Owners Association Fee: 0.00
- Insurance Expense: 0.00
- Net Operating Income: 0.00
- Other Expense: 0.00
- Tax Year: 2025
Other Features
- Appliances: Built-In Oven, Cooktop, Dishwasher, Dryer, Electric Water Heater, Microwave, Range, Refrigerator, Washer, Water Softener, Wine Refrigerator
- Country: US
- Furnished: Unfurnished
- Interior Features: Built-in Features, Cathedral Ceiling(s), Ceiling Fans(s), Central Vaccum, Chair Rail, Eat-in Kitchen, High Ceilings, Kitchen/Family Room Combo, Living Room/Dining Room Combo, Open Floorplan, Primary Bedroom Main Floor, Solid Surface Counters, Solid Wood Cabinets, Split Bedroom, Walk-In Closet(s), Window Treatments
- Legal Description: LOT 120 SUMMERHAVEN PHASE IV MB 41 PG 39 PER OR 3077 PG 1934 PER OR 6252 PGS 4668-4669 PER OR 6344 PG 4648 PER OR 6360 PG 4058 PER OR 6360 PG 4059 PER OR 6393 PG 1756 PER OR 7803 PG 4799
- Levels: Two
- Area Major: 32713 - Debary
- Occupant Type: Vacant
- Parcel Number: 8025-07-00-1200
- Style: Contemporary
- View: Park/Greenbelt, Trees/Woods
- Views: 84
- Zoning Code: 01R4
Nearby Subdivisions
500 Plantation States
5140 St Johns River Est The S
Debary Plantation
Debary Plantation Un 16c3
Debary Plantation Un 17b
Debary Plantation Un 9b
Debary S Of Highbanks
Debary S Of Highbanks W Of 17
Florida Lake Park Prop Inc
Glen Abbey
Glen Abbey Club
Lake Marie Estates
Lake Marie Estates Rep
Not On The List
Orlandia Heights
Other
Plantation Estates
Reserve At Debary Ph 04
River Oaks 01 Condo
Riviera Bella
Riviera Bella Un 02b
Riviera Bella Un 3
Riviera Bella Un 4
Riviera Bella Un 5
Riviera Bella Un 8a
Riviera Bella Un 9a
Riviera Bella Un 9b
Riviera Bella Un 9c
Rivington
Rivington Ph 1a
Rivington Ph 1b
Rivington Ph 1c
Rivington Ph 2a
Rivington Ph 3
Rivington Phase 2b
Saxon Woods
Spring Walkthe Junction Ph 1
Springview
Springview Woods Ph 3
Springwalk At The Junction
St Johns River Estates
Summerhaven Ph 02
Summerhaven Ph 04
Townlk Marie Estates Rep
Woodbound Lakes
- Broker IDX Sites Inc.
- 750.420.3943
- Toll Free: 005578193
- support33@brokeridxsites.com

































































