2540 Lakeshore Drive, Marianna, FL 32446
Property Photos
Would you like to sell your home before you purchase this one?
Priced at Only: $565,000
For more Information Call:
Address: 2540 Lakeshore Drive, Marianna, FL 32446
Property Location and Similar Properties
- MLS#: 767680 ( CommercialSale )
- Street Address: 2540 Lakeshore Drive
- Viewed: 1
- Price: $565,000
- Price sqft: $160
- Waterfront: No
- Year Built: 1993
- Bldg sqft: 3524
- Days On Market: 258
- Additional Information
- Geolocation: 30.75 / -85.1789
- County: JACKSON
- City: Marianna
- Zipcode: 32446
- Subdivision: No Named Subdivision
- Provided by: Chipola Realty, Chipley Office
- DMCA Notice
-
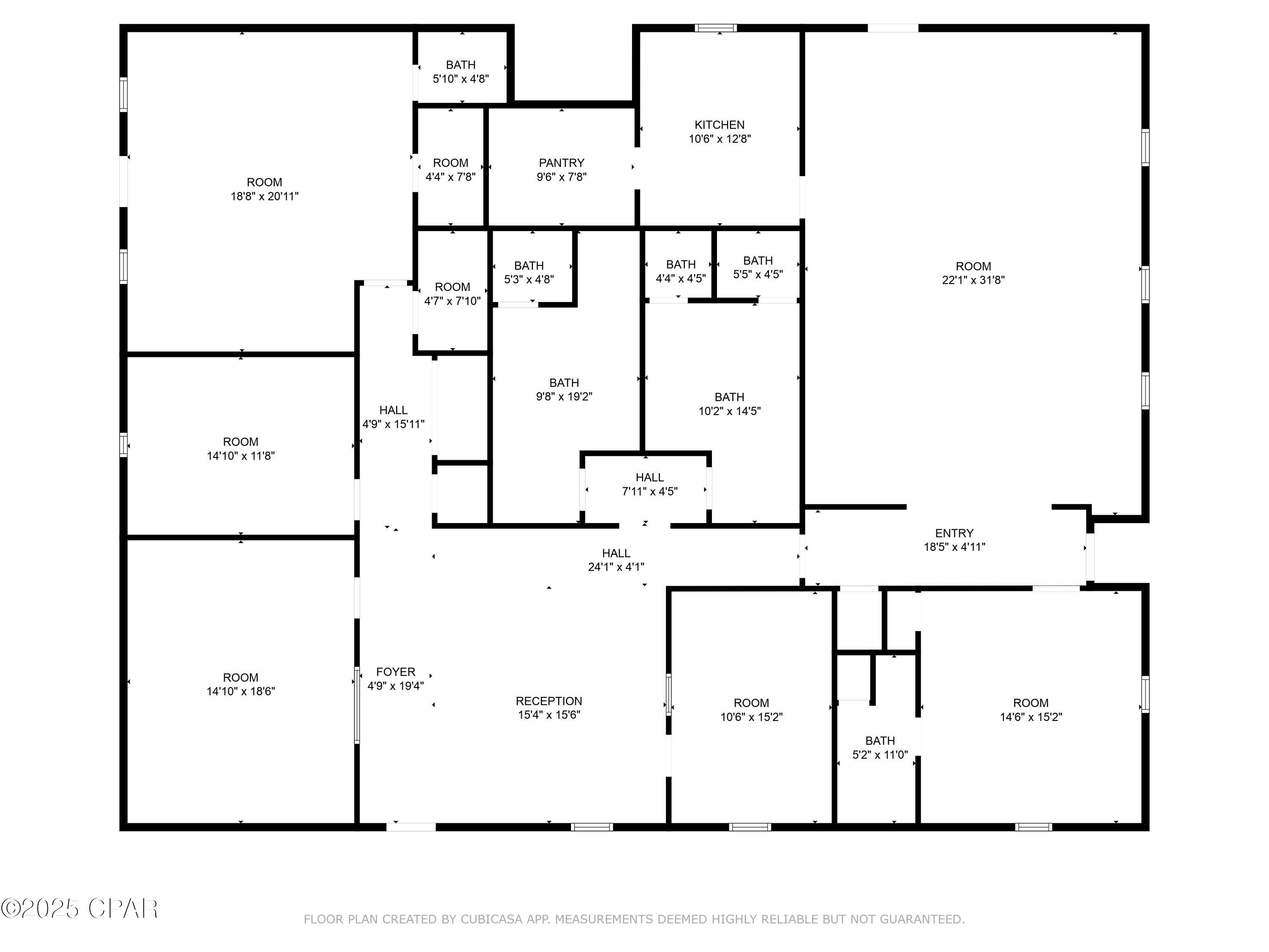
DescriptionDiscover a rare opportunity to own a professional commercial office complex with true versatility in one of the fastest growing areas in the Florida Panhandle, a distinguished property that seamlessly combines commercial potential with amble parking and prime location. The office complex consists of a centrally located reception area. 5 offices and a large conference room.2 of the offices feature private bathrooms, with one containing a shower. A kitchenette along with an additional full kitchen. Multiple storage closets throughout the complex. Men's and Ladies' handicap accessible restrooms located just off the reception area. The Men's restroom consists of 1 private stall and one stall with urinal. The Ladies' restroom consists of 2 private stalls. There is a portico at the conference room entrance. 22 paved parking spots all on 0.75 acres of land +/ . Located just off Hwy 90 East, close to Signature Healthcare and the VA Clinic.
Payment Calculator
- Principal & Interest -
- Property Tax $
- Home Insurance $
- HOA Fees $
- Monthly -
For a Fast & FREE Mortgage Pre-Approval
Apply Now

Features
Building and Construction
- Covered Spaces: 0.00
- Exterior Features: Columns
- Living Area: 0.00
Land Information
- Lot Features: Cleared
Garage and Parking
- Garage Spaces: 0.00
- Open Parking Spaces: 0.00
- Parking Features: Paved
Utilities
- Carport Spaces: 0.00
- Heating: Central, Electric
Finance and Tax Information
- Home Owners Association Fee: 0.00
- Insurance Expense: 0.00
- Net Operating Income: 0.00
- Other Expense: 0.00
- Pet Deposit: 0.00
- Security Deposit: 0.00
- Trash Expense: 0.00
Other Features
- Legal Description: OR 240 P 104 OR 311 P 958 OR 520 P 975 OR 553 P 197 OR 1032 P 283 COMM AT NWC
- Area Major: 09 - Jackson County
- Occupant Type: Vacant
- Parcel Number: 18-4N-09-0000-0050-0000
- Possible Use: Commercial
- The Range: 0.00
Similar Properties
Nearby Subdivisions

- Broker IDX Sites Inc.
- 750.420.3943
- Toll Free: 005578193
- support@brokeridxsites.com